Vendita
Se prestigio significa silenzio e Pace come in una villa in centro
NAPOLI (NA)
- ZONA Monte Santo
€ 1.050.000
Rif: come una villa in centro - Piero Ferrari offre alla propria intera un'altra irripetibile e prestigiosa soluzione di lusso ed un ottimo investimento al centro storico che cresce giorno dopo giorno ovvero: Dimora Storica con Giardino Segreto nel Cuore di Napoli.
Nel cuore antico della città,
dove le voci del tempo si intrecciano con il canto dei merli,
sorge un palazzo ottocentesco che un tempo fu casino di caccia della nobile famiglia Caracciolo.
Qui, tra pietre che hanno visto secoli di storia e finiture dal gusto impeccabile,
si respira l'eleganza di un palazzotto di Chiaia, ma immerso nella quiete del centro storico.
A pochi minuti da tutto ciò che conta:
• 7 minuti dalla tangenziale, uscita Arenella
• 8 minuti a piedi da metropolitana, funicolare e Cumana per il Vomero
• 12 minuti da Piazza Dante
• 5 minuti dalla fermata di Salvator Rosa
Lo storico palazzo circondato da quattro garage a pagamento di cui uno di fronte casa ad un minuto a piedi.
Eppure, una volta oltrepassato il portone, il tempo sembra fermarsi.
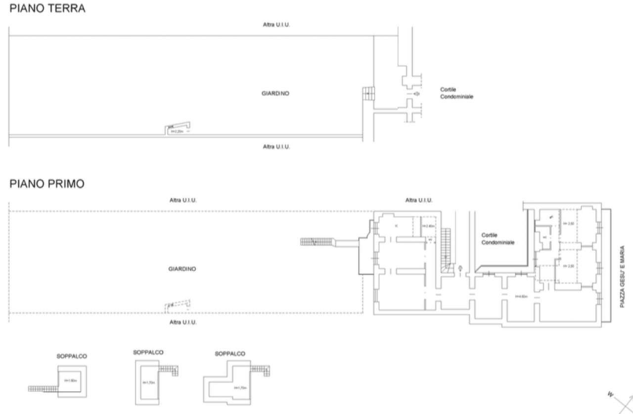
Alla fine del Corso Vittorio Emanuele, in Piazza Gesù e Maria,
si apre un luogo raro: una villa nel cuore della città.
Un Giardino di 500 metri quadri
Ideale per collocare una grande piscina......
Un giardino che respira, che accoglie e custodisce.
Alberi di diverse essenze, voci d'uccellini al mattino,
un'oasi silenziosa circondata da altre due aree verdi.
Qui, il silenzio non è assenza, ma armonia.
️ L'Appartamento
Un'ampia dimora di 270 metri quadri,
modellata su una pianta a forma di C,
con affacci sulla piazza e sul proprio giardino segreto.
Facilmente divisibile in due unità indipendenti di cui una delle due non gioverebbe dell'accesso diretto al giardino E neanche dell'affaccio su di esso ma avrebbe vista su su Piazza Giuseppe Maria,
Cio'al fine di per accogliere un familiare, un ospite, o semplicemente un nuovo inizio.
La casa è stata ristrutturata alla fine degli anni 90 ma potrebbe essere scelta anche solo così com e' adesso ,con una piccola rivisitazione, perché gli infissi sono di qualità ei servizi seppur datati sono accettabili mentre l'impianto elettrico è caratterizzato da una sezione rassicurante.
Le condizioni del palazzo sono perfette, frutto di una ristrutturazione eseguita con garbo e rispetto.
Ogni dettaglio riflette la cura e la qualità di chi ha saputo coniugare la storia con il comfort contemporaneo.
️ La Dependence
Dal piano terra, con accesso diretto al giardino,
una dependance con bagno: ideale per personale di servizio,
oppure come piccola rendita autonoma (fino a Eu.700/mese).
⛪ Un Contesto di Valore
Alle spalle, l'antico Ospedale di Gesù e Maria, in corso di ristrutturazione,
e a pochi passi, la Chiesa di Gesù e Maria, voluta nel 1570 e ampliata nel Seicento da Fabrizio Pontecorvo —
testimoni silenziosi di un passato che continua a vivere tra le pietre e le ombre gentili di questo luogo unico.
Nel cuore antico della città,
dove le voci del tempo si intrecciano con il canto dei merli,
sorge un palazzo ottocentesco che un tempo fu casino di caccia della nobile famiglia Caracciolo.
Qui, tra pietre che hanno visto secoli di storia e finiture dal gusto impeccabile,
si respira l'eleganza di un palazzotto di Chiaia, ma immerso nella quiete del centro storico.
A pochi minuti da tutto ciò che conta:
• 7 minuti dalla tangenziale, uscita Arenella
• 8 minuti a piedi da metropolitana, funicolare e Cumana per il Vomero
• 12 minuti da Piazza Dante
• 5 minuti dalla fermata di Salvator Rosa
Lo storico palazzo circondato da quattro garage a pagamento di cui uno di fronte casa ad un minuto a piedi.
Eppure, una volta oltrepassato il portone, il tempo sembra fermarsi.
Alla fine del Corso Vittorio Emanuele, in Piazza Gesù e Maria,
si apre un luogo raro: una villa nel cuore della città.
Un Giardino di 500 metri quadri
Ideale per collocare una grande piscina......
Un giardino che respira, che accoglie e custodisce.
Alberi di diverse essenze, voci d'uccellini al mattino,
un'oasi silenziosa circondata da altre due aree verdi.
Qui, il silenzio non è assenza, ma armonia.
️ L'Appartamento
Un'ampia dimora di 270 metri quadri,
modellata su una pianta a forma di C,
con affacci sulla piazza e sul proprio giardino segreto.
Facilmente divisibile in due unità indipendenti di cui una delle due non gioverebbe dell'accesso diretto al giardino E neanche dell'affaccio su di esso ma avrebbe vista su su Piazza Giuseppe Maria,
Cio'al fine di per accogliere un familiare, un ospite, o semplicemente un nuovo inizio.
La casa è stata ristrutturata alla fine degli anni 90 ma potrebbe essere scelta anche solo così com e' adesso ,con una piccola rivisitazione, perché gli infissi sono di qualità ei servizi seppur datati sono accettabili mentre l'impianto elettrico è caratterizzato da una sezione rassicurante.
Le condizioni del palazzo sono perfette, frutto di una ristrutturazione eseguita con garbo e rispetto.
Ogni dettaglio riflette la cura e la qualità di chi ha saputo coniugare la storia con il comfort contemporaneo.
️ La Dependence
Dal piano terra, con accesso diretto al giardino,
una dependance con bagno: ideale per personale di servizio,
oppure come piccola rendita autonoma (fino a Eu.700/mese).
⛪ Un Contesto di Valore
Alle spalle, l'antico Ospedale di Gesù e Maria, in corso di ristrutturazione,
e a pochi passi, la Chiesa di Gesù e Maria, voluta nel 1570 e ampliata nel Seicento da Fabrizio Pontecorvo —
testimoni silenziosi di un passato che continua a vivere tra le pietre e le ombre gentili di questo luogo unico.
Contratto Vendita
Rif come una villa in centro
Prezzo € 1.050.000
Provincia Napoli
Comune Napoli
Zona Monte Santo
Indirizzo Piazza Piazza Gesu e Maria 4">
Vani 12
Camere 4
Bagni 4
Classe energetica
Non indicata
Piano 1 / 3
Riscaldamento autonomo
Condizioni da ristrutturare
Spese condominiali € 40
Anno di costruzione 1679
Arredato si
Ascensore si
Cucina abitabile
Consistenze
Descrizione | Superficie | Sup. comm. |
---|---|---|
Principali | ||
Immobile - 1° piano | 270 Mq | 270 Mqc |
Accessorie | ||
Giardino/Resede | 500 Mq | 50 Mqc |
Totale | 320 Mqc |






















































































































































